Plans for new housing at the former Freda Gardham school on New Road in Rye will be submitted early in the new year. Rye Town Council’s planning committee received a preview of the developer’s proposals at their meeting on Monday 10 November.
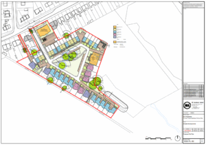
Martello Developments confirmed it intends to build 52 homes on the land – an increase of four from the proposals announced last year.
To make way for the homes the buildings which currently house Rye Creative Centre will be demolished. The meeting at the town hall also heard plans for a new centre for artists at the Atlas Business Park on Rye Harbour Road.
The new homes will be built on both the site of the old school and the former swimming pool next door. Discussions continue with East Sussex County Council.
They will consist of flats and 2/3/4 and 5 bedroom houses. The exact amount of affordable housing has yet to be decided, however the site has a 30% allocation.

The need to provide cheaper housing in Rye was raised by councillors during the meeting. “It is what we are focussed on,” said Councillor Boyd. “Without affordable homes the viability of Rye is in question. We need homes for the young people who work here but are forced to live in Hastings and Ashford and commute here.”
Rob Pollard from RX Architects explained that a decision on potential social housing would be made following an independent viability assessment which will be part of the planning process. “We have been in constant contact with Rother District Council planners throughout who have made many suggestions.”
The new homes will have no ground floor bedrooms because of the flood risk.
In November last year, Rye News revealed Martello’s proposals for 140 new homes on four sites in Rye. The company says it is now prioritising the new homes on the Freda Gardham school site and the new creative centre.
The company’s plans for housing on Rye Harbour Road, Rock Channel and Tilling Green were described as “on hold for now” by Alex Cheneviere from Martello.
In October, East Sussex County Council confirmed it is selling the land next to the Tilling Green Community Centre.
Image Credits: RX Architects/Martello , RX Architects .


There should be social housing. All developers are expected to provide the appropriate homes per private builds.
The lack of affordable housing is causing the demise of communities. Young people who were born in Rye and the surrounding areas cannot afford to rent, let alone buy properties. This means that they are forced to move to ‘cheaper’ areas. A condition of new homes developments should be to provide affordable properties for those who have always lived here and want to raise their own families in the same area, as well as for older residents.
Sadly the sites in Rye are too small to accommodate social housing, and get a good return on the developers huge outlay.and the only development was the Valley Park, which has housed social housing successful, Rye town council along with the Housing associations should look how many houses that are empty and not being used for different reasons where people have gone into homes, and the property remains empty, sometimes for years, and also the private sector all over Rye from Landgate to North Salts which have been abandoned for years.surely compulsory orders should be in place,to deter this blatant misuse of much needed housing in this town.
John you have a very level head with confidence & insight in these matters…..perhaps you should be on the Rye’s council’s pay roll!!!.
It’s so twisted & turning all the time…Martello’s got away without building the sea walk…..Oh !!! Covid hit, it’s not doable now…..so they can sell them…..
As 4 all the other land….they will twist & turn it around so they look like there hard done by again….money talks!!!! I’m not a ‘Ryer’ but I do care for this place…..you have seen its demise more than me…..please keep up your wonderful comments…people like you are the solution, they just dont like rebellion….I met Helena MP last night, a slight but strong lady….I’m going to stay in touch with her….I dont care what party she in but shes a good person & approachable…..shes got the drive in her….we need to work with her before she burns out….just a thought sir best wishes Andy
It intrigues as to the ‘there will be no ground floor bedrooms because of the flood risk’. Do the planners believe this regulation will reduce the flood risk? Will people sleeping on the ground floor increase the flood risk?
This has all the signs of being Ryes own White Sands development.
If there is a flood risk with no ground floor bedrooms, does it mean that the beautiful new flood bank, is not good enough for Martello , the planning department should make it a requirement that some social housing be provided on the site first ,before completing further housing.If they can’t do this then give up the site and let it be run by a Housing Association,funded by maybe by the National Lottery or even by Children in Need Charity ,as these houses would be benefitting children in the long run .
At St Marys development in Chatham, because of flood risk the bottom floor has been used for garages – this also helps enable more housing as 2 cars can be accommodated if needed, one in the garage and one in the allotted parking space. This idea should be used more often