With a decision due soon on the housing development on Ferry Road in Rye, more homes are being proposed locally – this time for Hobbs Lane in Beckley.
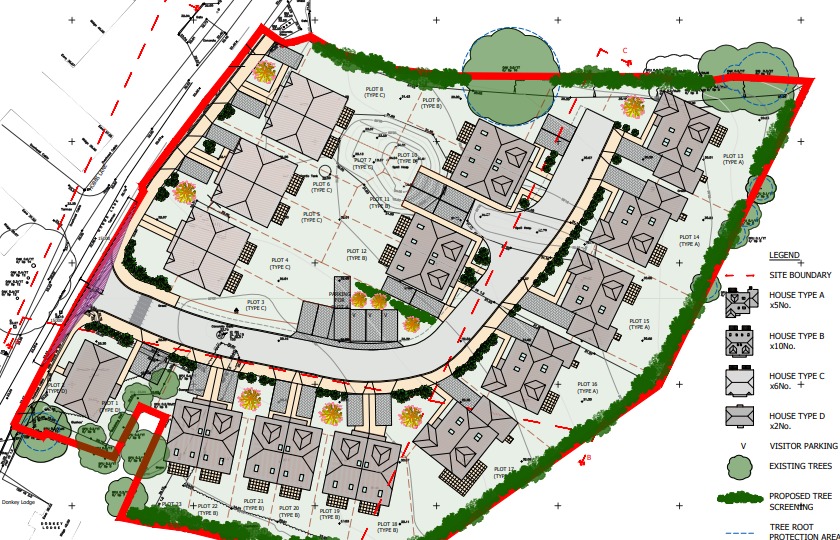
In an application recently validated by Rother District Council, developer Manroy Properties LLP is seeking outline planning permission to build up to 23 houses. Part of the site was previously occupied by a brick building used as an engineering works, but this has already been demolished and the site cleared. The rest of the site sits on land to the rear of where this building had stood, bordered to the south by a number of properties in Coombs Close.
According to the developers, the scheme would be designed to limit the impact on these nearby properties.
In a statement submitted as part of the application, a spokesman for the developer said: “The design has been undertaken to minimise impact on neighbouring property to the south and surroundings. The layout submitted shows that 23 dwellings in an appropriate size, type and mix of units can be achieved. We consider that the proposed development is appropriate and that the planning authority will find these proposals acceptable.”
The developer also notes how the site has been included within Rother District Council’s Development and Site Allocations Local Plan (DASA) — a document which sets out potential development sites around the district.
While the final mix of housing would come as part of a later application, the developer has provided plans showing what the finished development could look like: six three-bedroom houses, 10 four-bedroom houses, five five-bedroom houses and two two-bedroom flats.
For further information on the proposals see application reference RR/2023/2129/P on the Rother District Council website.
Meanwhile, a formal planning application is expected soon for the development on Winchelsea Road in Rye. Plans for a new Aldi supermarket, housing, and retirement living apartments are being proposed.
Image Credits: Manroy Properties .


There is no mention here of the asbestos contaminating the site or the fact that the DASA agreed 12 small affordable homes not 23 executive ones!
Have you seen the traffic that goes up and down Hobbs Lane? we don’t need anymore added to it.